BAU-Forum: Grundriss-Diskussionen
Neueste Forums-Bilder
Forums-Beiträge
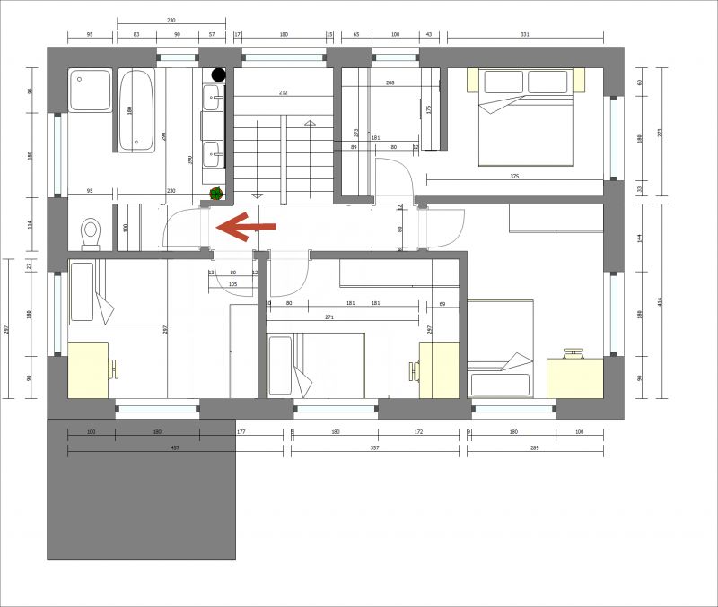
10740: Grundriss optimieren: Feedback zu OG (WC, Bad) und EG (Speis, Küche) gesucht 26.01.2026
- Nur der Kellergrundriß ist brauchbar zu lesen..... 26.01.2026
- Ergänzende Grundrisse 27.01.2026
- Ein paar Gedanken dazu... 27.01.2026
- Danke für die Anmerkungen... 28.01.2026
- So einfach kann man Ihre Fragen..... 30.01.2026
10739: Optimierung des Erdgeschoss-Grundrisses: Ideen für offenen Wohnbereich gesucht 07.08.2025
10738: Grenzwände 16.08.2023
- Was für Wände? 16.08.2023
- Klärung notwendig 17.08.2023
10737: Ideen für Grundriss 15.07.2023
- was soll praktiziert werden? 15.07.2023
10736: Einheitliches Dach und Dämmung für Gebäudekomplex aus 1903: Bauantrag, Zeichnungen und Architektenhonorar 15.05.2023
- irgendwie passen die Zahlen nicht 16.05.2023
- @Kirschner 16.05.2023
- @Kirschner 16.05.2023
- Kirschner 16.05.2023
- Bei einem klaren Auftrag 16.05.2023
10735: Brainstorming/Ideen erbeten, Raumkonzept für Altbausanierung 17.09.2021
- falscher Ansatz 17.09.2021
10734: Haus- und Grundstücksplanung Südgrundstück Trapezförmig 06.09.2021
10733: Wohnzimmer, Esszimmer und Küche. Was haltet Ihr vom Grundriss? 14.05.2021
- Tolle Aufteilung 06.07.2021
10732: Welches Grundstück würdet ihr nehmen? 10.03.2021
- OT, aber als Formsbetreiber hilfreich für mich: Bitte... 10.03.2021
- Campingstuhl und Augen geschlossen 11.03.2021
- Bei dem Grundstück am Fluss stellt... 11.03.2021
10731: Grundriss Meinungen 23.01.2021
- For the sake of argument 03.02.2021
10730: Unabhängige Meinung Einfamilienhaus ca. 140 m² 09.01.2021
- For the sake of argument 03.02.2021
- Bad zu klein? 03.02.2021
- Das Bad wird etwas kleiner,... 03.02.2021
- Jetzt verstehe ich dich... 04.02.2021
- Oberes Bad finde ich gut 05.08.2021
10729: Stadthaus bauen mit winzigem Grundriss? 12.06.2020
10728: Haus mit Einliegerwohnung (Grundriss) Meinungen? Verbesserungen? 13.05.2020
- (Grundriss) 15.05.2020
10727: Grundrissideen: Aus Einfamilienhaus => 2x Appartement => Einfamilienhaus :-) 31.03.2020
- neue Baugenehmigung 01.04.2020
10726: Meinungen zum Grundriss 12.08.2019
- Das Bad im OG2 ist an... 16.08.2019
10725: Schnitthöhe im Dachgeschoss (Bestandszeichnung)? 05.08.2019
- Architektenplan 07.08.2019
10724: Modernes Hanghaus, EFH 03.06.2019
10723: Wohin mit Bad und Küche 24.02.2019
- Wohin mit Bad und Küche - gibt es schon... 23.03.2024
10722: Hallo, wir haben ein Haus gefunden... 22.01.2019
Anhang:
- Überlegen 23.01.2019
- Wir haben ein Haus gefunden 23.01.2019
- Mieterrechte 24.01.2019
- Danke für die Denkanstöße 25.01.2019
10721: Anordnung Wohnen, Essen, Kochen 14.12.2018
10720: Grundriss für Mehrfamilienhaus 19.11.2018
- Bauweise 19.11.2018
- weder durchgeplant noch durchdacht 19.11.2018
- Danke für die kostruktive Hinweise. Der... 19.11.2018
- Grundriss 19.11.2018
- Hinweise, keine Prüfung 19.11.2018
- WEG & Honorarberater 21.11.2018
- Jede Beratung kostet Geld 21.11.2018
- Kann ich gut verstehen, Beratung für... 21.11.2018
- Schlafzimmer und Aufzug 21.11.2018
- Brandschutz & Treppenhaus & Baubetreuer 23.11.2018
10719: Grundriss Einfamilienhaus zweigeschossig mit großem Luftraum - Meinungen erbeten 22.10.2018
- Grundriss EFH 23.10.2018
- Der Statiker... 23.10.2018
- @ Pauline Neugebauer 23.10.2018
- @ Rüdiger und Monika Berg 23.10.2018
- Eben... 23.10.2018
- Grundriss EFH 25.10.2018
- @ Pauline Neugebauer 26.10.2018
- Stahlträger 27.10.2018
- Danke 29.10.2018
10718: Gebäude Einmessung 21.07.2017
- Studienarbeit? 21.07.2017
10717: Wohnbau viele verschiedene oder mehrere gleiche Wohnungen? 16.01.2017
- Hallo, ich denke schon dass es eher... 05.04.2017
10716: Grundriss - 145 m² Einfamilienhaus ohne Keller - eure Meinung 06.09.2016
- Damit haben Sie leider recht... 07.09.2016
- Na dann ab damit zum Generalübernehmer Ihres Vertrauens 07.09.2016
- Hallo, nnaja so genau kann ich... 05.04.2017
10715: Wer weiß das? - Brandschutzmauer 10.08.2016
- 2 Aspekte 11.08.2016
- Ist mir noch unklar 11.08.2016
- ja 12.08.2016
10714: Was sagt ihr zu meinen Grundrissen?... 27.07.2016
- Was soll das mal werden... 27.07.2016
- Wie wäre es mit einem Einfamilienhaus... 27.07.2016
- Jetzt wird es mir klar. 27.07.2016
- Danke lieber Josef... 27.07.2016
- Feedback vom Laien 28.07.2016
- Wir hatten in der Klausur 15 min 28.07.2016
- Noch ein Hinweis 28.07.2016
- Vielen Dank... 29.07.2016
- Vielen Dank... 29.07.2016
- Wenn Sie weniger als 15... 29.07.2016
- @wiki 29.07.2016
- Nur für die Küche? Lächerlich! 29.07.2016
- Einen Reserve für alle möglichen denkbaren... 01.08.2016
- Übersehen (mein Fehler): UP-Dose <> Steckdose Sorry! 01.08.2016
- Sanitär 02.08.2016
10713: 1 Meter Aufschüttung Regelung einhalten? 15.05.2016
- Ortskenntnis gefragt 16.05.2016
10712: Entscheidung Dachneigung - Expertenmeinung gesucht 23.03.2016
- Häää, was daran ist schwierig? , Smiley, es geht nur um eine Entscheidung! 25.03.2016
- Vielen Dank für Ihre Unterstützung. Wir... 25.03.2016
10711: Hallo, wir wollen ein 4-Familien Mietshaus... 19.01.2016
- Fragen Sie doch 20.01.2016
10710: Grundriss - eure Meinung ist gefragt! 15.11.2015
- Mal lediglich ganz schnell 17.01.2017
10709: geänderte Erschließung durch mehrere Straße 03.11.2015
- nanu, keiner gibt Rat? 21.11.2015
10708: Badgrundriss, eure Meinungen 18.10.2015
10707: Welcher DDR-Bungalow-Typ könnte das sein 23.05.2015
10706: Grenzbebauung 12.05.2015
- Grenzpunkte 12.05.2015
10705: Hallo! Wir bauen ein Fertighaus 20.04.2015
- Wie... 21.04.2015
- Architektengespräch ist noch, Grundrisse sind... 21.04.2015
- Hallo, Doppelbett an der Wand ist ungünstig,... 21.04.2015
10704: Schacht-Kennzeichnung im Grundriss 14.02.2015
- das ist .. 14.02.2015
- Status Bauphase 14.02.2015
10703: Was ist Einheit 0? 08.12.2014
- Warum? 08.12.2014
10702: Publikum Anzahl 23.11.2014
- Nutzung 24.11.2014
10701: Ausrichtung Neubau Hanglage 28.09.2014
- Grundrisse mit Zugang vom Süden 29.09.2014
10700: Wer kann mir eine Wohnfläche berechnen und ein Gutachten erstellen? 18.05.2014
- Sollte jeder Architekt können 19.05.2014
10699: Wasserinstallation in Küche entspricht nicht dem Wasserinstallationsplan 11.01.2014
- Vertrag 11.01.2014
- Wasserinstallation in Küche entspricht nicht dem Wasserinstallationsplan 12.01.2014
- Maßtoleranzen im Hochbau! 12.01.2014
- Na, stand das Maß nun in der Zeichnung, 12.01.2014
- Ich möchte auf die VOB/C aufmerksam machen. 12.01.2014
- Wasserinstallation in Küche entspricht nicht dem Wasserinstallationsplan 25.01.2014
- Verstehe ich das richtig?... 25.01.2014
10698: Grundriss so sinnvoll und realisierbar? 08.01.2014
Anhang:
- Garderobe und Flur 09.01.2014
- Vorneweg wir finden den Grundriss super!... 05.10.2014
10697: Innenputz-Dicke in Grundriss-Abmessungen eingerechnet 22.12.2013
Anhang:
- Neuer Grundriss 25.12.2013
Anhang:
- Guck in die WoFiV 31.12.2013
- Vielen Dank... 01.01.2014
- Innenputz ist Wandbekleidung 02.01.2014
- In Bauzeichnungen 07.01.2014
10696: Elternschlafzimmer und Hauptbadezimmer im EG! Hilfe?! 31.10.2013
- Architekt 31.10.2013
10695: Freistehender Aufzugturm 18.09.2013
10694: Unwissend aber gerecht? 25.08.2013
- Katasteramt 25.08.2013
- Miete 26.08.2013
- Soso 26.08.2013
10693: Geschossproblem 29.07.2013
- welchen Sinn.. 29.07.2013
- Geschmack vielleicht?... 29.07.2013
- Weil... 29.07.2013
- Hausbauer... 29.07.2013
- Links 29.07.2013
Anhang:
- das erklärts... 29.07.2013
- Umsetzung 29.07.2013
- In 30.07.2013
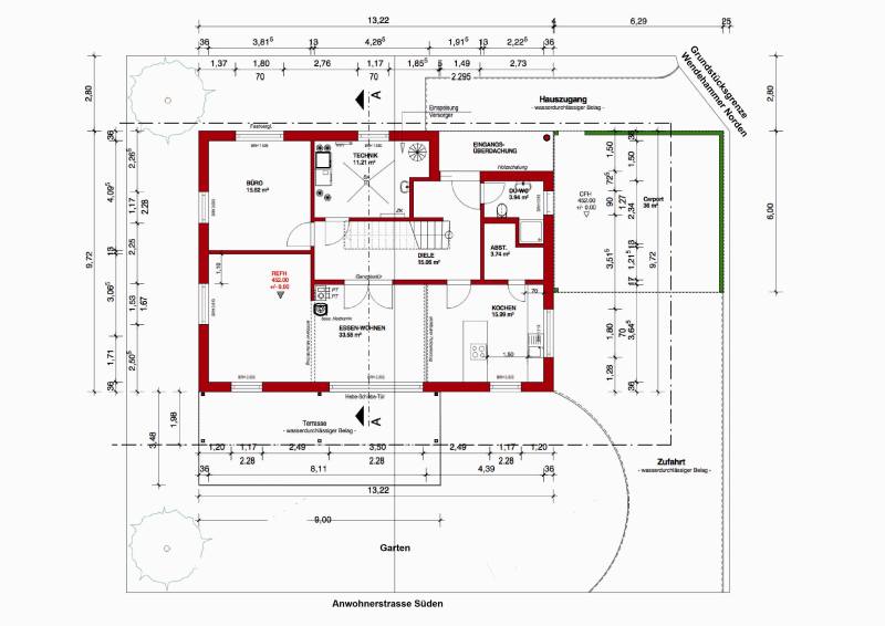
10692: Zugang im Norden? Was meint ihr? 20.06.2013
10691: Rechtsanwaltskanzlei 01.06.2013
- Rechtsanwaltskanzlei - Ergänzung 01.06.2013
Anhang:
- Hmmm... 01.06.2013
- Hallo, es geht mir hier zunächst... 01.06.2013
- zu wenig Infos 01.06.2013
- Ihre aufgeworfenen Fragen (Technik etc.) erledigt... 01.06.2013
- So wenig, .. 03.06.2013





























































































